logo-locauxrama

Bureaux à Louer à partir de 235m² à Tours - Réf. LR-V49253

Présenté par ADVENIS CONSEIL TOURS

31.725€ /an HTHC
loyer de la surface minimum

Touchez l'image pour voir tous les visuels

Description

Situé à TOURS NORD, à seulement 6 kilomètres de l'hypercentre de Tours (place Jean Jaurès de Tours centre), 4 minutes de l'autoroute A10, ou 10 minutes de l'A28 ainsi que du périphérique Tourangeau.
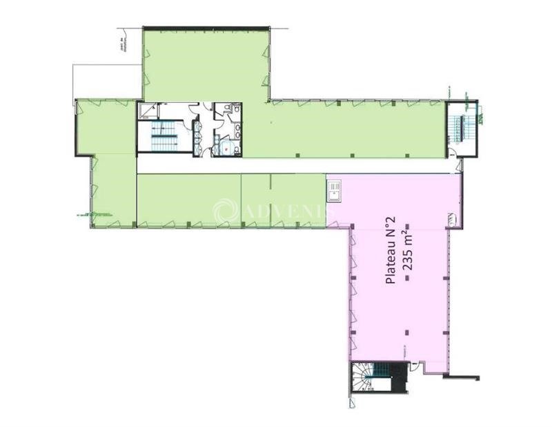
Advenis Conseil vous propose à la location des bureaux d'environ 235 m² ou 480 m² situés dans un programme récent avec ascenseur.
Ces bureaux bénéficient des nombreux services disponibles sur le site (restauration, salle de sport, crèche, conciergerie), et d'un accès au parking de l'immeuble.


DPE En cours

Les informations sur les risques auxquels ce bien est exposé sont disponibles sur le site Géorisques : www.georisques.gouv.fr

Informations financières

  • Loyer annuel surface minimum :

  • Honoraires :

  • 31.725 Euros/an HTHC (135 Euros/m2/an HTHC)

  • 15 % HT à la charge du preneur

Surfaces proposées


BâtimentTypologieSurface
FARMANBureaux235
FARMANBureaux480

Desserte transports

A proximité de l'A10 et de l'A28
Echangeur A85 à 15 km environ
Desserte bus Fil Bleu
Aéroport à proximité
Gare TGV à 10 Km

Consommation énergétique

DPE : En cours de réalisation.

Offres similaires

Surface totale 130 m² - Dispo. 2ème trimestre 2026

BUREAUX

37000, TOURS

37_2150

Surface totale 250 m² - Dispo. Immédiate

BUREAUX

37100, TOURS

37_0115

Surface totale 145 m² - Dispo. Immédiate

BUREAUX

37100, TOURS

24_1808E1