logo-locauxrama

Bureaux à Vendre de 296m² à Montpellier - Réf. LR-W55309

Présenté par ADVENIS CONSEIL NARBONNE

536.600€

Touchez l'image pour voir tous les visuels

Description

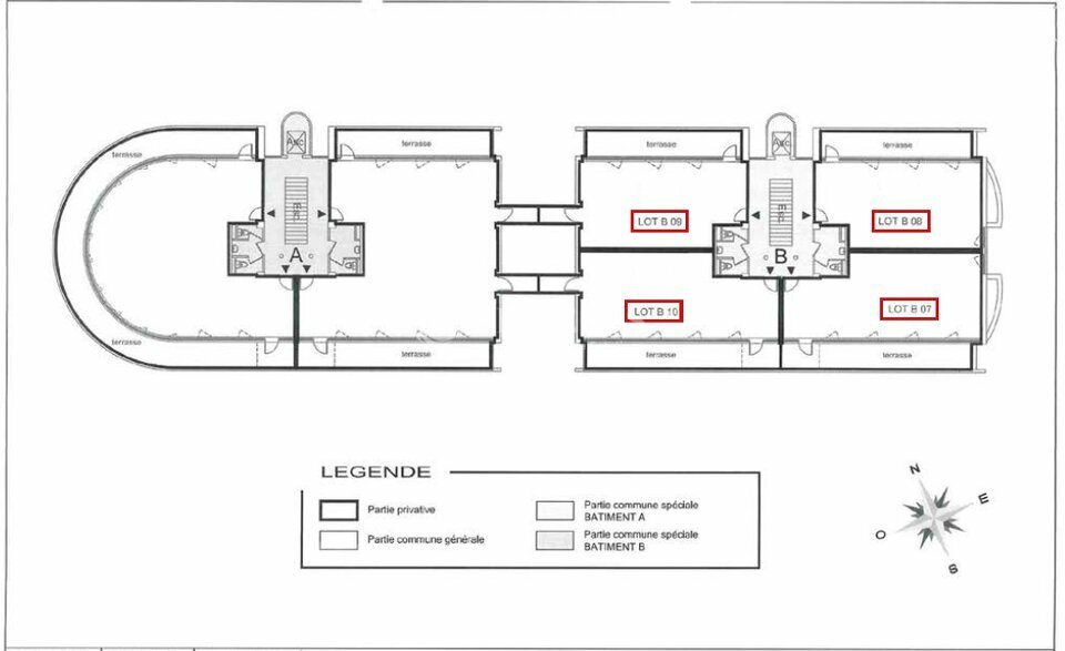
Advenis propose à la vente, à destination des investisseurs, un plateau de bureaux. d'une surface totale de 295.8 m² dont 35.24 m² de quote parts de parties communes au 2ème étage, 71 m² de terrasse et 11 places de stationnement.

Cette surface se situe au sein du programme immobilier MILLÉNIUM, implanté dans le quartier Millénaire à Montpellier, un secteur tertiaire reconnu et attractif.

Accès et desserte :

Routiers : proximité immédiate de l'A709 (sortie n°29 Montpellier Est) et de la route de Carnon.

Transports en commun : lignes de bus desservant le quartier (liaison vers le centre-ville et les lignes de tramway).

Gare & aéroport : 10 minutes de la gare TGV Sud de France et de l'aéroport Montpellier Méditerranée.

Ce programme bénéficie d'un environnement dynamique, regroupant de nombreuses entreprises et services.
DPE En cours

Les informations sur les risques auxquels ce bien est exposé sont disponibles sur le site Géorisques : www.georisques.gouv.fr

Informations financières

  • Prix de vente :

  • Honoraires :

  • 536.600 Euros

  • Nous consulter

Surfaces proposées


Bât/LotSurface utileSurfaceNiveauLoyer annuel HT.HCPlaces de parkingPrix de vente H.TPrix Parking
Bât B / 07/08/09/10260,56295,80R+233.630 Euros11536.600 Euros55.000 Euros

Consommation énergétique

DPE : En cours de réalisation.

Offres similaires

Surface totale 108 m² - Dispo. Immédiate

BUREAUX

34000, MONTPELLIER

34_002362

Surface totale 101 m² - Dispo. Courant 2025

BUREAUX

34000, MONTPELLIER

34_0453

Surface totale 214 m² - Dispo. T4 2022

BUREAUX

34070, MONTPELLIER

34_001533