logo-locauxrama

Local commercial à Vendre de 178m² à Narbonne - Réf. LR-W56867

Présenté par ADVENIS CONSEIL NARBONNE

372.855€

Touchez l'image pour voir tous les visuels

Description

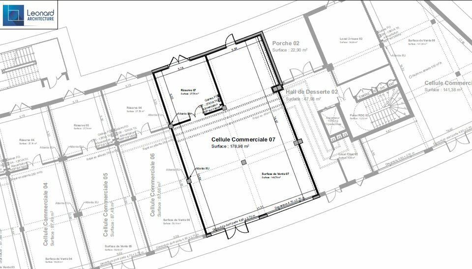
À Narbonne, ADVENIS vous propose à la vente, une cellule commerciale au rez de chaussée d'un futur centre d'affaires dynamique.

Elle bénéficie d'une excellente visibilité, d'un parking dédié, d'un cadre paysager soigné, de prestations modernes et conformes aux dernières normes environnementales (RE2020) et d'accessibilité (PMR).

Elle est disponible soit en version brute, pour une personnalisation complète selon vos besoins, soit entièrement aménagée, prêt à l'emploi.

Situé dans une zone à fort potentiel économique, ce centre d'affaires bénéficie d'un emplacement stratégique :

À 5 minutes du centre-ville de Narbonne

À 8 minutes de la gare

À 3 minutes de l'autoroute A9

Avec un accès immédiat à la rocade

Une opportunité idéale pour les activités suivantes :
santé (médical et paramédical), professions libérales, commerces etc...

N'hésitez pas à nous contacter pour plus de renseignements.
DPE En cours

Les informations sur les risques auxquels ce bien est exposé sont disponibles sur le site Géorisques : www.georisques.gouv.fr

Informations financières

  • Prix de vente :

  • Honoraires :

  • 372.855 Euros

  • 6 % HT à la charge de l'acquéreur

Surfaces proposées


Bât/LotTypologieSurfacePrix de vente /m² HD ou HT
CC07Local Commercial 177.552100

Consommation énergétique

DPE : En cours de réalisation.

Offres similaires

Surface totale 1300 m² - Dispo. Immédiate

LOCAL COMMERCIAL

11100, NARBONNE

LR_W52212

Surface totale 87 m² - Dispo. Immédiate

LOCAL COMMERCIAL

11100, NARBONNE

11_0141

Surface totale 47 m² - Dispo. Immédiate

LOCAL COMMERCIAL

11100, NARBONNE

LR_W56468