logo-locauxrama

Local commercial à Vendre à partir de 150m² à Nuits Saint Georges - Réf. 21.000102

Présenté par JCR AARON COOPER

270.000€
prix de la surface minimum

Touchez l'image pour voir tous les visuels

Description

Très bel emplacement en bordure de D116 à accès direct sur A31

Cellules neuves livraison 3 ème trimestre 2025

Livraison brut de béton fourreaux en attente

Prix de vente : 1800 Euros HT / M2 SHON POUR L'ENSEMBLE DE L'IMMEUBLE

Honoraires d'Agence 5 % HT du prix de vente en sus du prix de vente.


DPE Vierge

Les informations sur les risques auxquels ce bien est exposé sont disponibles sur le site Géorisques : www.georisques.gouv.fr

Informations financières

  • Prix de vente surface minimum :

  • Honoraires :

  • 270.000 Euros (1.800 Euros/m2)

  • 5 % HT à la charge de l'acquéreur

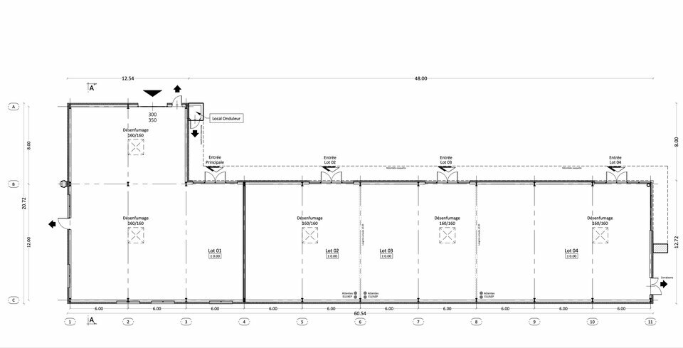
Surfaces proposées

SURFACES DIVISIBLES ET AMENAGEMENTS POSSIBLES EN OPTION SUR DEMANDE

Accès routiers

A 31

Desserte transports

A 31

Consommation énergétique

DPE : En cours de réalisation.

Offres similaires

De 200 m² à 200 m² - Dispo. Immédiate

LOCAL COMMERCIAL

21700, NUITS SAINT GEORGES

21_000105

De 400 m² à 400 m² - Dispo. Immédiate

LOCAL COMMERCIAL

21700, NUITS SAINT GEORGES

21_000106