logo-locauxrama

Local commercial à Vendre de 400m² à Nuits Saint Georges - Réf. 21.000106

Présenté par JCR AARON COOPER

800.000€

Touchez l'image pour voir tous les visuels

Description

Très bel emplacement en bordure de D116 à accès direct sur A31

Cellules neuves livraison 3 ème trimestre 2026

Livraison brut de béton fourreaux en attente

Prix de vente : 2000 Euros HT / M2 SHON POUR L'ENSEMBLE DE L'IMMEUBLE

Honoraires d'Agence 5 % HT du prix de vente en sus du prix de vente.


DPE Vierge

Les informations sur les risques auxquels ce bien est exposé sont disponibles sur le site Géorisques : www.georisques.gouv.fr

Informations financières

  • Prix de vente :

  • Honoraires :

  • 800.000 Euros

  • 5 % HT à la charge de l'acquéreur

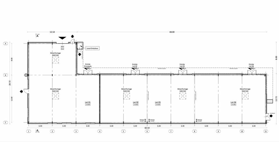
Surfaces proposées

SURFACES DIVISIBLES ET AMENAGEMENTS POSSIBLES EN OPTION SUR DEMANDE

Accès routiers

A 31

Desserte transports

A 31

Consommation énergétique

DPE : En cours de réalisation.

Offres similaires

De 200 m² à 200 m² - Dispo. Immédiate

LOCAL COMMERCIAL

21700, NUITS SAINT GEORGES

21_000105

De 150 m² à 871 m² - Dispo. Immédiate

LOCAL COMMERCIAL

21700, NUITS SAINT GEORGES

21_000102