logo-locauxrama

Bureaux à Vendre de 150m² à Montpellier - Réf. 34.1049

Présenté par SMILE RES

323.511€ HT

Touchez l'image pour voir tous les visuels

Description

Immeuble situé en zone Franche (avantages fiscaux et sociaux )

Grande qualité architecturale

Immeuble atypique

Vitres toute hauteur

Très belle luminosité

Possibilité d'ERP 5 sur les lots de RDC

Bureaux livrés nu sans cloisonnement intérieur

Précablé en courant faible

Prix parking sous-sol : 9 000 Euros HT / unité

Prix parking extérieur : 5 000 Euros HT / unité


DPE En cours

Les informations sur les risques auxquels ce bien est exposé sont disponibles sur le site Géorisques : www.georisques.gouv.fr

Informations financières

  • Prix de vente :

  • Honoraires :

  • 323.511 Euros HT

  • 2 % HT à la charge de l'acquéreur

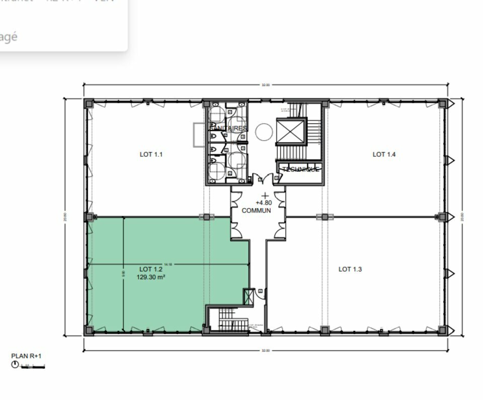
Surfaces proposées


Batiment - LotEtageTypeSurfacePrix vente HTParkingsDisponibilité
Lot 0.3RDC Bureaux182,46 m²2 250 Euros HT /m²1 ext 2 ss-solImmédiate
Lot 0.4RDC Bureaux122,04 m²2 300 Euros HT /m²1 ext 2 ss-solImmédiate
Lot 0,1RDCBureaux 122,04 m² 2 200 Euros HT : m² 1 ext 2 ss-sol Immédiate
Lot 1.2R+1Bureaux150,47 m²2 150 Euros HT /m²1 ext 2 ss-solImmédiate
Lot 1.3R+1Bureaux180,09 m²2 200 Euros HT /m²1 ext 2 ss-sol Immédiate
Lot 1.4R+1Bureaux132,70 m²2 200 Euros HT /m²1 ext 2 ss-solImmédiate

Desserte transports

Sortie A709 ouest à 15 min
Aéroport à 20 min
Gare à 20 min

Consommation énergétique

DPE : En cours de réalisation.

Offres similaires

Surface totale 150 m² - Dispo. Immédiate

BUREAUX

34090, MONTPELLIER

34_002498

Surface totale 95 m² - Dispo. Immédiate

BUREAUX

34000, MONTPELLIER

3448219855

Surface totale 100 m² - Dispo. Immédiate

BUREAUX

34000, MONTPELLIER

3448219921