logo-locauxrama

Bureaux à Louer de 86m² à Angers - Réf. 49.017437

Présenté par GIBOIRE NANTES

15.115€ /an HTHC

Touchez l'image pour voir tous les visuels

Description

A LOUER - Giboire Entreprise - Bureaux / Local professionnel - 58 m² - Angers Gare

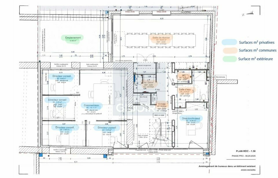
Dans un ensemble immobilier professionnel réhabilité à neuf, situé sur le quartier Gare / La Baumette à Angers, et accessible directement depuis la rocade et les axes autoroutiers, un plateau de bureaux d'environ 57,50 m² de surface utile privative associé à des espaces partagés, et une terrasse extérieure. Bureaux aménagés et équipés.

Surface privative : Un bureau d'accueil / secrétariat, un open-space de trois postes environ, trois bureaux d'un poste et un bureau ouvert d'un poste. Soit environ 57,50 m².

Surface commune : Entrée / accueil, locaux techniques informatiques et élec, sanitaires et douche, une salle de réunion avec espace cuisine aménagée et équipée. Soit environ 26,26 m² et 22 m² environ de terrasse extérieure partagée (proratisée à 1/3).


DPE En cours

Les informations sur les risques auxquels ce bien est exposé sont disponibles sur le site Géorisques : www.georisques.gouv.fr

Informations financières

  • Loyer annuel :

  • Honoraires :

  • 15.115 Euros/an HTHC

  • 30 % HT à la charge du preneur

Surfaces proposées


Batiment - LotEtageTypeSurface privative (m²) Surface commune (m²) Surface terrasse extérieure (m²) Surface locative (m²) Loyer annuel HT HC
LOT 1 RDC BUREAUX 57,50 m² 26,26 m²7,15 m² 86,15 m² 15 115 Euros

Accès routiers

Rocade

Desserte transports

Bus de ville, Tramway, Train SNCF, Voies vélos

Consommation énergétique

DPE : En cours de réalisation.

Offres similaires

De 187 m² à 2512 m² - Dispo. Immédiate

BUREAUX

49000, ANGERS

49_017031

Surface totale 126 m² - Dispo. FIN OCTOBRE 2025

BUREAUX

49100, ANGERS

49_017416

Surface totale 24 m² - Dispo. Immédiate

BUREAUX

49000, ANGERS

49_021808