logo-locauxrama

Bureaux à Vendre de 176m² à Trevoux - Réf. 694X837466

Présenté par SAS VERSION LOCAL

522.200€ F.A.I

Touchez l'image pour voir tous les visuels

Description

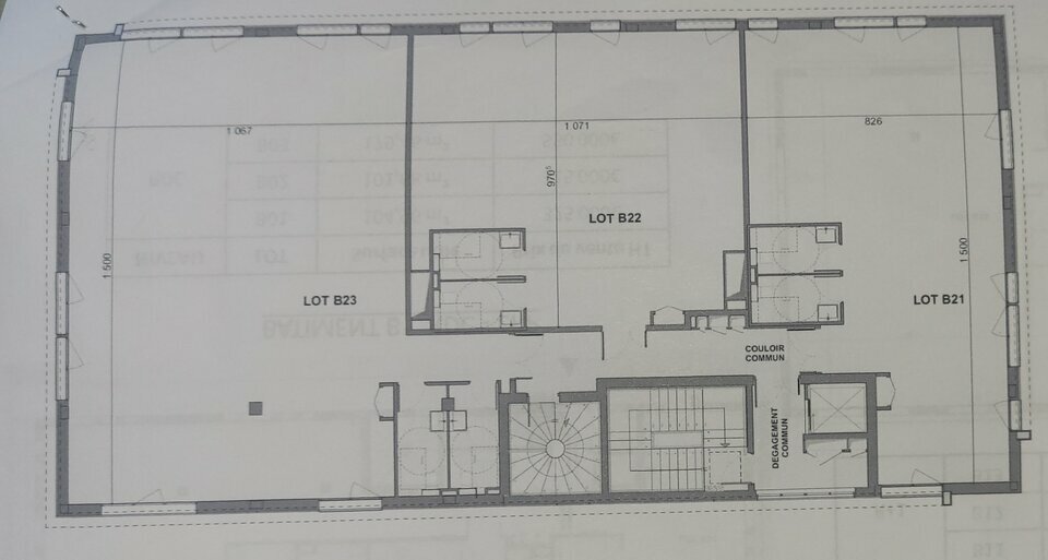
A vendre bureau R+2 175 m² à Trévoux 01600 plusieurs surfaces de bureaux dans un programme neuf. Plusieurs lots entre 100 et 200 m². Lots en RDC (ERP) ou étage ERP sur certains lots, possibilité d'acheter plusieurs lots. Certaines réservations sont déjà faites et l'on retrouve du service sur la personne, à la personne, médicale, etc (kinésithérapeute, micro-crèche, notaires, géomètres etc). Les activité autorisées sont services et tertiaires. Les lots sont livrés en plateau, finitions bureaux sols, plafonds, murs finis. Les gaines électriques sont en attente, le chauffage prévu sera une climatisation réversible. le parc sera clos par un portail motorisé et accessible par contrôle. Des places de parking sont attribuées à chaque lot (1/50M²) et possibilité d'acheter des places supplémentaires. Le parc sera arboré et se situe sur la ligne Lyon Mâcon. livraison début 2025. Vente en VEFA- l'ensemble sera géré par une co-propriété. TVA en sus LOT B23 (ERP)


DPE En cours

Les informations sur les risques auxquels ce bien est exposé sont disponibles sur le site Géorisques : www.georisques.gouv.fr

Informations financières

  • Prix de vente :

  • 522.200 Euros F.A.I

Surfaces proposées

Surface totale de 176 m²

Consommation énergétique

DPE : En cours de réalisation.

Offres similaires

Surface totale 194 m² - Dispo. 2025

BUREAUX

01600, TREVOUX

694X840480

Surface totale 101 m² - Dispo. 2025

BUREAUX

01600, TREVOUX

694X837450

De 69 m² à 4950 m² - Dispo. Selon les lots

BUREAUX

01600, TREVOUX

01_0134