logo-locauxrama

Bureaux à Louer à partir de 156m² à Genas - Réf. 69.000064

Présenté par PROLOCAUX

21.055€ /an HT
loyer de la surface minimum

Touchez l'image pour voir tous les visuels

Description

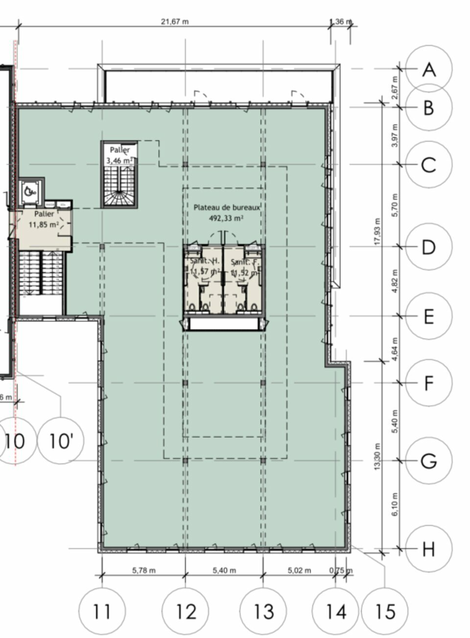
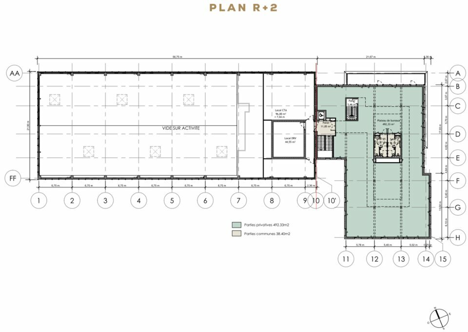
Au coeur du parc d'activité EvErEst situé à Genas, à louer bureaux de 564m² neufs (y compris quote-part communs) de dernière génération en R+2.

Divisibilité possible en 2 ou 3 lots (nous consulter).

Ce bien à la location vous est proposé par PROLOCAUX.


DPE En cours
Agent commercial - inscrit au RSAC de GRENOBLE sour le numéro 950 956 961

Les informations sur les risques auxquels ce bien est exposé sont disponibles sur le site Géorisques : www.georisques.gouv.fr

Informations financières

  • Loyer annuel surface minimum :

  • Taxe foncière :

  • Honoraires :

  • 21.055 Euros/an HT (135 Euros/m2/an HT)

  • 11.844 Euros/an

  • 15 % HT à la charge du preneur

Surfaces proposées

Surface totale de 564 m²

Consommation énergétique

DPE : En cours de réalisation.

Offres similaires

De 281 m² à 1054 m² - Dispo. Immédiate

BUREAUX

69740, GENAS

69_2326

De 155 m² à 4552 m² - Dispo. Selon les lots

BUREAUX

69740, GENAS

69_2719

Surface totale 174 m² - Dispo. Immédiate

BUREAUX

69740, GENAS

69_0131