logo-locauxrama

Bureaux à Vendre ou à Louer à partir de 130m² à Villeurbanne - Réf. 69.0219

Présenté par OFYS

Touchez l'image pour voir tous les visuels

Description

Vous cherchez des bureaux spacieux, lumineux et bien situés à Villeurbanne,

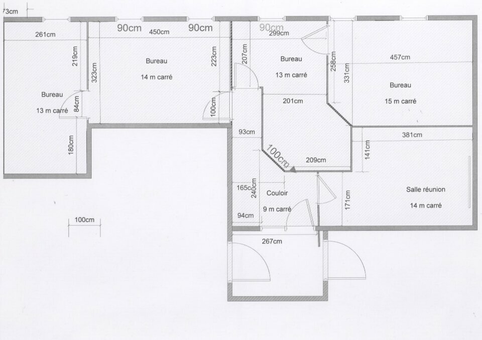
Ces bureaux de 430 m², situés au 4ème étage d'un immeuble de bureaux, sont parfaits pour une entreprise en pleine croissance. Ils offrent un espace de travail modulable et lumineux, idéal pour accueillir vos équipes.

En détail :

  • 430 m² de surface utile modulable
  • 2 surfaces de bureaux de 300m2 et 130m2 qui sont actuellement séparées par un sas privatif qui peuvent être réunies
  • Lumineux
  • Accès PMR
  • Cloisonnés
  • Fibre optique
  • Parking en sous-sol et en extérieur en sus

Situation idéale : L'immeuble est situé avenue Condorcet, à Villeurbanne,

Cette avenue est facilement accessible en voiture et en transports en commun, par le Tramway situé au pied de l'image à proximité immédiate du périphérique.


DPE En cours

Les informations sur les risques auxquels ce bien est exposé sont disponibles sur le site Géorisques : www.georisques.gouv.fr

Informations financières

  • Loyer annuel surface minimum :

  • Prix de vente surface minimum :

  • Taxe foncière :

  • 18.850 Euros/an HTHC (145 Euros/m2/an HTHC)

  • 390.000 Euros HD HF (3.000 Euros/m2 HD HF)

  • 6.312 Euros/an

Surfaces proposées


Batiment - LotEtageTypeSurfaceParkings en sous solParkings Ext.
lot droit4eBUREAUX430m²85
local archives-1Archives caves25 et 27m²
lot divisé
GaucheBUREAUX300m²
Droit130m²

Accès routiers

Périphérique
Axe Stalingrad

Consommation énergétique

DPE : En cours de réalisation.

Offres similaires

De 109 m² à 248 m² - Dispo. Immédiate

BUREAUX

69100, VILLEURBANNE

69_1520

De 177 m² à 508 m² - Dispo. Immédiate

BUREAUX

69100, VILLEURBANNE

69_007233

De 176 m² à 507 m² - Dispo. Immédiate

BUREAUX

69100, VILLEURBANNE

69_0296