logo-locauxrama

Bureaux à Vendre de 429m² à Bois-guillaume - Réf. 76.001051

Présenté par PROLOCAUX

1.115.660€ HT

Touchez l'image pour voir tous les visuels

Description

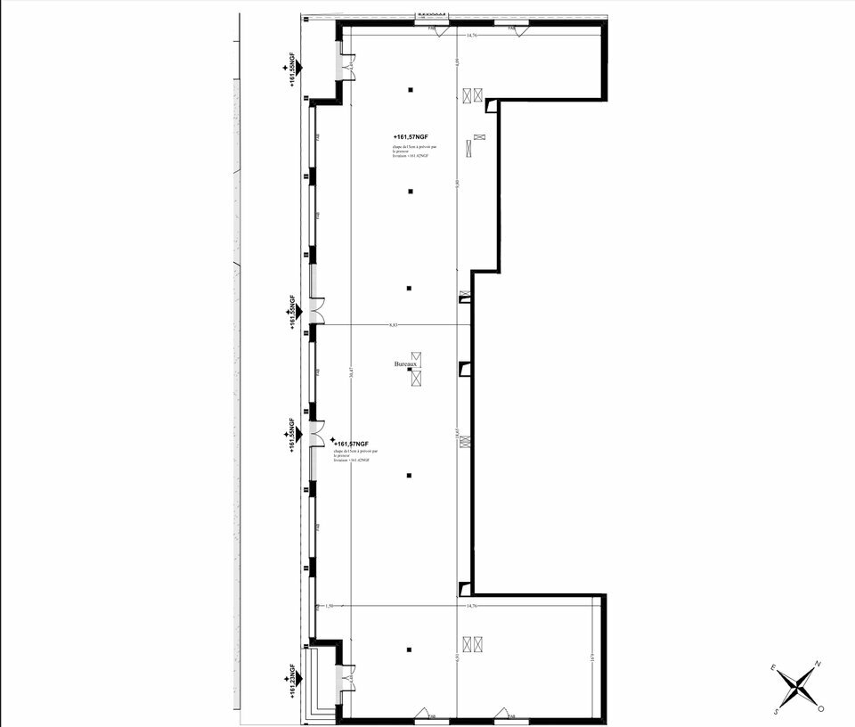
Nous vous proposons à la vente un local en rez-de-chaussée à usage de bureaux / local d'activité, au sein d'un programme neuf en cours de réalisation, situé à Bois-Guillaume, Route de Neufchâtel.

Le local est proposé en VEFA et développera une surface totale d'environ 429 m² en rez-de-chaussée. Il sera livré brut de béton, fluides en attente, permettant un aménagement selon les besoins du futur utilisateur.

La surface est majoritairement ouverte et dispose de plusieurs accès, offrant une organisation fonctionnelle des espaces et une bonne souplesse d'aménagement.

Le bien est destiné à des usages de bureaux, activité tertiaire ou activité légère compatible avec un local en rez-de-chaussée.

Ces locaux vous sont proposés à la vente par PROLOCAUX.


DPE En cours
Vadim REBAUD, agent commercial PROLOCAUX - inscrit au RSAC de Rouen sour le numéro 994 377 547

Les informations sur les risques auxquels ce bien est exposé sont disponibles sur le site Géorisques : www.georisques.gouv.fr

Informations financières

  • Prix de vente :

  • Honoraires :

  • 1.115.660 Euros HT

  • 7 % HT à la charge de l'acquéreur

Surfaces proposées

Surface totale de 429 m²

Desserte transports

- Bus Parc Andersen (8m) - supérieur à Lignes : F1, F8
- Bus Mairie de Bois-Guillaume (323m) - supérieur à Lignes : F1, F8
- Bus Sainte-Venise - C.H.U. (325m) - supérieur à Lignes : F8
- Bus Max Pouchet (373m) - supérieur à Lignes : F8, 10
- Bus Le Cèdre - C.H.U. (456m) - supérieur à Lignes : F1

Consommation énergétique

DPE : En cours de réalisation.

Offres similaires

Surface totale 117 m² - Dispo. 3ème trimestre 2027

BUREAUX

76230, BOIS-GUILLAUME

76_001055

Surface totale 315 m² - Dispo. 3ème trimestre 2027

BUREAUX

76230, BOIS-GUILLAUME

76_001054

Surface totale 334 m² - Dispo. 3ème trimestre 2027

BUREAUX

76230, BOIS-GUILLAUME

76_001053