logo-locauxrama

Bureaux à Vendre de 117m² à Bois-guillaume - Réf. 76.001055

Présenté par PROLOCAUX

303.004€ HT

Touchez l'image pour voir tous les visuels

Description

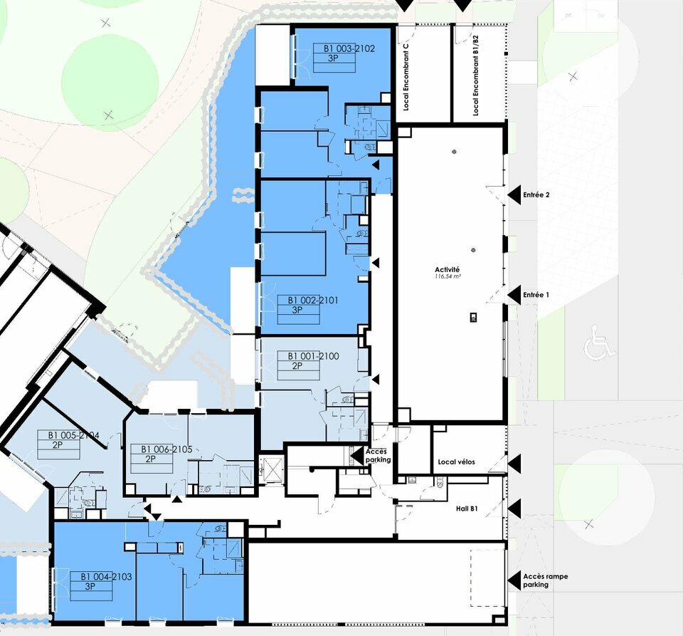
Nous vous proposons à la vente un local à usage de bureaux / local d'activité, situé en rez-de-chaussée, au sein d'un programme immobilier neuf en cours de réalisation, à Bois-Guillaume, Route de Neufchâtel.

Le local est vendu en VEFA et développe une surface totale d'environ 116,55 m² en rez-de-chaussée.

La surface est majoritairement ouverte et dispose de plusieurs accès indépendants, facilitant les circulations et les usages selon l'activité exercée.

Le local sera livré brut de béton, fluides en attente, permettant un aménagement entièrement à la charge du futur acquéreur.

Ce bien est adapté à des usages de bureaux, activité tertiaire ou activité légère compatible avec un local en rez-de-chaussée.

Ce local vous est proposé à la vente par PROLOCAUX.


DPE En cours
Vadim REBAUD, agent commercial PROLOCAUX - inscrit au RSAC de Rouen sour le numéro 994 377 547

Les informations sur les risques auxquels ce bien est exposé sont disponibles sur le site Géorisques : www.georisques.gouv.fr

Informations financières

  • Prix de vente :

  • Honoraires :

  • 303.004 Euros HT

  • 7 % HT à la charge de l'acquéreur

Surfaces proposées

Surface totale de 117 m²

Desserte transports

- Bus Parc Andersen (8m) - supérieur à Lignes : F1, F8
- Bus Mairie de Bois-Guillaume (323m) - supérieur à Lignes : F1, F8
- Bus Sainte-Venise - C.H.U. (325m) - supérieur à Lignes : F8
- Bus Max Pouchet (373m) - supérieur à Lignes : F8, 10
- Bus Le Cèdre - C.H.U. (456m) - supérieur à Lignes : F1

Consommation énergétique

DPE : En cours de réalisation.

Offres similaires

Surface totale 429 m² - Dispo. 3ème trimestre 2027

BUREAUX

76230, BOIS-GUILLAUME

76_001051

Surface totale 315 m² - Dispo. 3ème trimestre 2027

BUREAUX

76230, BOIS-GUILLAUME

76_001054

Surface totale 334 m² - Dispo. 3ème trimestre 2027

BUREAUX

76230, BOIS-GUILLAUME

76_001053