logo-locauxrama

Local commercial à Louer de 225m² à Sorgues - Réf. 84.1558

Présenté par BAUX LOCAUX

24.300€ /an HTHC

Touchez l'image pour voir tous les visuels

Description

Baux Locaux vous propose un local commercial neuf d'environ 225m², livré brut avec les fluides en attente, situé au sein d'une future zone d'activité dynamique à Sorgues.


Ce local bénéficiera d'un emplacement exceptionnel, directement en bordure de l'autoroute, offrant ainsi une visibilité optimale.

En bordure d'une route très passante, cette zone accueillera également des locaux d'activités, favorisant une forte attractivité et une synergie entre diverses activités. Le site bénéficie d'un emplacement stratégique, à proximité immédiate des grands axes routiers (autoroute A7, D907), offrant une excellente accessibilité et visibilité.

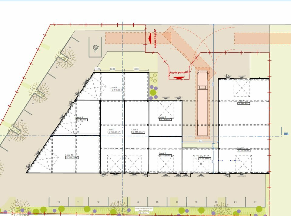
Ce local sera situé en direct du bord d'autoroute pour une très bonne visibilité. Afin de vous situer, merci de vous référer au plan en photo : Local 9 + Local 10


DPE En cours

Les informations sur les risques auxquels ce bien est exposé sont disponibles sur le site Géorisques : www.georisques.gouv.fr

Informations financières

  • Loyer annuel :

  • Honoraires :

  • 24.300 Euros/an HTHC

  • 15 % HT à la charge du preneur

Surfaces proposées

Surface totale de 225 m²

Consommation énergétique

DPE : En cours de réalisation.

Offres similaires

Surface totale 175 m² - Dispo. Septembre 2026

LOCAL COMMERCIAL

84700, SORGUES

84_1563

Surface totale 315 m² - Dispo. Septembre 2026

LOCAL COMMERCIAL

84700, SORGUES

84_1567

De 200 m² à 412 m² - Dispo. Septembre 2026

LOCAL COMMERCIAL

84700, SORGUES

84_1543