logo-locauxrama

Local commercial à Vendre de 490m² à Champlan - Réf. 91.0984

Présenté par VILLEBON 2 IMMOBILIER

750.000€ NET VENDEUR

Touchez l'image pour voir tous les visuels

Description

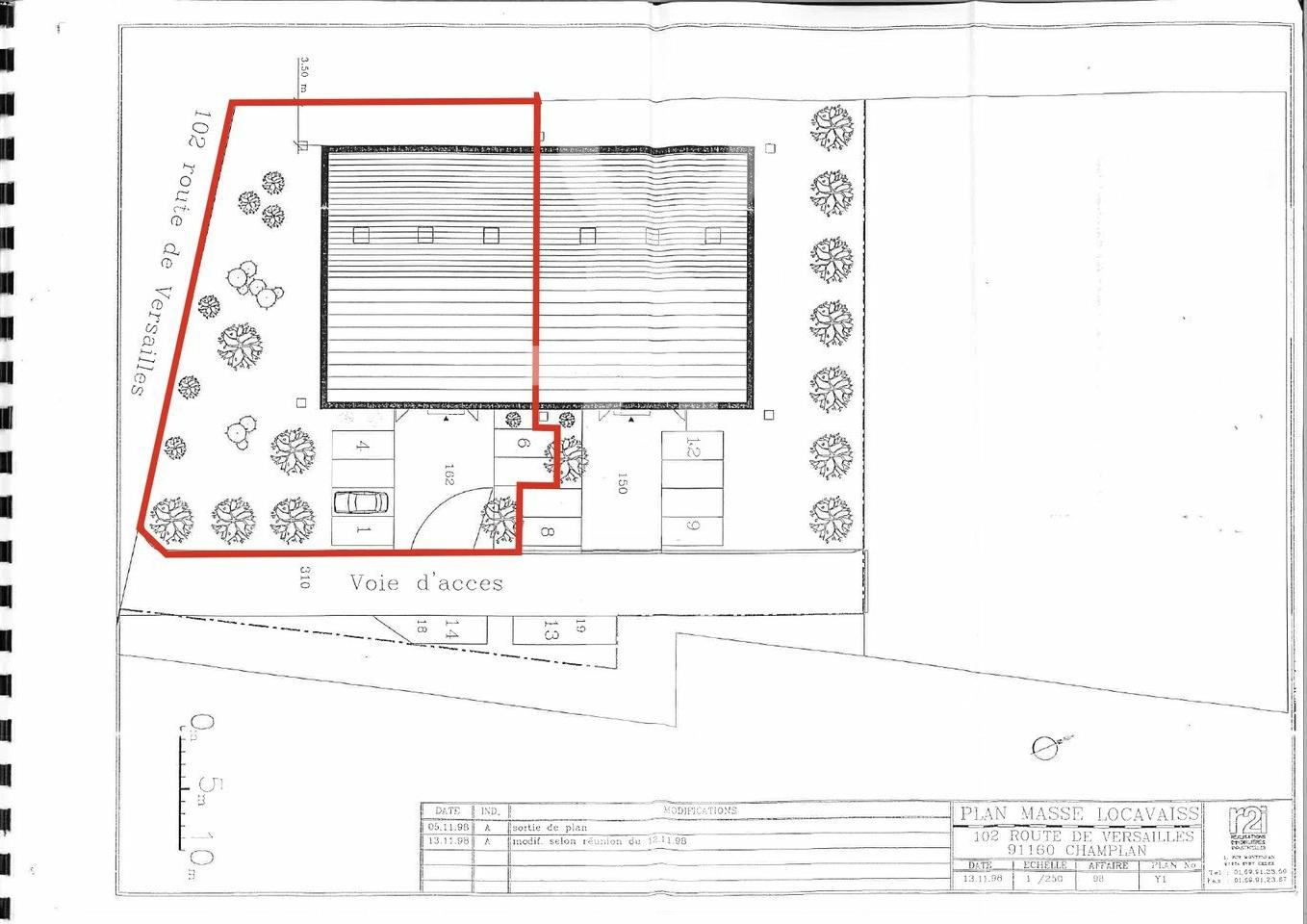
Emplacement stratégique au 102 route de Versailles .

Découvrez ce local d'activité polyvalent de 490m² , idéalement situé à Champlan.

Ce bien offre une configuration optimale pour allier stockage et gestion administrative.

Caractéristiques principales :

  • Surface totale de plancher : 370 m².

  • Espace Stockage : Une grande surface de stockage fonctionnelle.

  • Espace Bureaux & Accueil : Un accueil de 12 m² et un bureau de 20,80 m².

  • Commodités : Sanitaires de 5 m².

  • Atout supplémentaire : Une mezzanine de 120 m².

  • 6 Places de stationnement

    Les points forts :

  • Confort : Chauffage au sol présent sur l'ensemble du lot.

  • Accès : Situé en bordure de la voie d'accès.

  • Disponibilité : Bien vendu libre de toute occupation.

  • Hauteur sous poutre : Min 5.70m/maxi 6.50

  • Portes manuelles 3.50m x 3.50m

  • Bardage double peau avec isolation

    Contactez-nous pour organiser une visite !


DPE En cours

Les informations sur les risques auxquels ce bien est exposé sont disponibles sur le site Géorisques : www.georisques.gouv.fr

Informations financières

  • Prix de vente :

  • Honoraires :

  • 750.000 Euros NET VENDEUR

  • 6 % HT à la charge de l'acquéreur

Surfaces proposées

Surface totale de 490 m²

Consommation énergétique

DPE : En cours de réalisation.

Offres similaires

Surface totale 550 m² - Dispo. Immédiate

LOCAL COMMERCIAL

91160, LONGJUMEAU

91_0972