logo-locauxrama

Bureaux à Vendre à partir de 75m² à Geispolsheim - Réf. LR-A46315

Présenté par ADVENIS CONSEIL STRASBOURG

206.250€ HT
prix de la surface minimum

Touchez l'image pour voir tous les visuels

Description

NOUVEAU PROJET - PARC DU WIESEL - GEISPOLSHEIM

Advenis Conseil et Transaction vous propose en exclusivité à la vente 826 m² de bureaux, situés dans le nouveau Parc du Wiesel à Geispolsheim.

Ces plateaux de bureaux, divisibles à partir de 75 m², sont situés au sein d'un bâtiment de bureaux en R+2 avec ascenseur, terrasses communes à chaque niveau, parking extérieur et couvert.

Le développement du parc va se dérouler de manière progressive. Idéalement situé à proximité des embranchements autoroutiers en direction de Strasbourg, Brumath, Saverne, Entzheim, Duppigheim, Molsheim, Obernai, Barr et Sélestat.
DPE En cours

Les informations sur les risques auxquels ce bien est exposé sont disponibles sur le site Géorisques : www.georisques.gouv.fr

Informations financières

  • Prix de vente surface minimum :

  • Honoraires :

  • 206.250 Euros HT (2.750 Euros/m2 HT)

  • 5 % HT à la charge de l'acquéreur

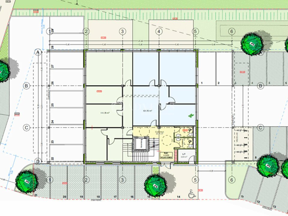
Surfaces proposées


Bât/LotTypologieSurface
VertBureaux111,78
BleuBureaux 101,92
RoseBureaux123,16
VioletBureaux125,13
VertBureaux68,49
JauneBureaux66,49
JauneBureaux67,51

Desserte transports

A 11 km de Strasbourg
Autoroute A35
Sortie La Vigie puis RD222
A 7 km de l'Aéroport international Strasbourg-Entzheim

Consommation énergétique

DPE : En cours de réalisation.

Offres similaires

De 62 m² à 680 m² - Dispo. 1er trimestre 2025

BUREAUX

67400, GEISPOLSHEIM

67_0237

De 730 m² à 730 m² - Dispo. Immédiate

BUREAUX

67118, GEISPOLSHEIM

LR_A52827

Surface totale 213 m² - Dispo. Immediate

BUREAUX

67118, GEISPOLSHEIM

LR_A49729