logo-locauxrama

Bureaux à Louer à partir de 99m² à Rosheim - Réf. LR-A54981

Présenté par ADVENIS CONSEIL STRASBOURG

Touchez l'image pour voir tous les visuels

Description

Advenis Conseil et Transaction Strasbourg vous propose à la location des locaux à usage mixte à partir de 99 m², situés au coeur de la zone d'activités du Rosenmeer à Rosheim.

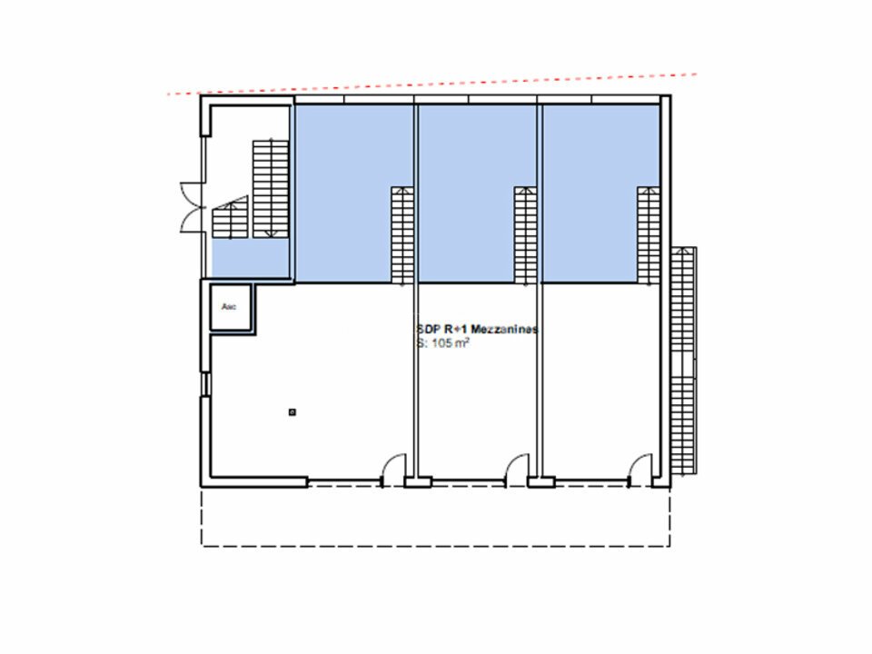
Ces locaux sont situés au sein d'un ensemble immobilier composé de 2 bâtiments à usage mixte (atelier et bureaux), implanté sur un site clos par portails d'environ 4.500 m². Ils sont composés de 3 cellules d'activité de 99 m² à 122 m² en rez-de-chaussée, ainsi que de 2 plateaux de bureaux de 286 m² en R+2 et 267 m² en R+3.

Grâce à sa localisation stratégique, la commune de Rosheim bénéficie d'une accessibilité optimale, notamment par sa proximité immédiate des grands axes routiers et autoroutiers. Elle se situe à seulement 5 minutes de Molsheim et d'Obernai, et à environ 20 minutes de Strasbourg, tout en étant desservie par le réseau TER Grand Est.
DPE En cours

Les informations sur les risques auxquels ce bien est exposé sont disponibles sur le site Géorisques : www.georisques.gouv.fr

Informations financières

  • Nous consulter

Surfaces proposées


Bât/LotTypologieSurfaceDétail des surfaces
Local 1Activités122 m²dont 30,5 m² de mezzanine
Local 2Activités99 m²dont 30,5 m² de mezzanine
Local 3Activités99 m²dont 30,5 m² de mezzanine
Plateau 1Bureaux286 m²dont 11,2 m² de communs
Plateau 2Bureaux266,6 m²dont 11,2 m² de communs

Accès routiers

A 30 km de Strasbourg et Sélestat
Accès A35
Sortie 11B Rosheim

Desserte transports

Gare TER de Rosheim à 1 km

Consommation énergétique

DPE : En cours de réalisation.

Offres similaires

De 16 m² à 192 m² - Dispo. 1er trimestre 2027

BUREAUX

67560, ROSHEIM

LR_A53613

Surface totale 238 m² - Dispo. Immédiate

BUREAUX

67560, ROSHEIM

LR_A25523

De 75 m² à 1636 m² - Dispo. Sous 18 mois

BUREAUX

67560, ROSHEIM

LR_A42024