logo-locauxrama

Bureaux à Louer à partir de 150m² à Sainghin En Melantois - Réf. LR-L53504

Présenté par ADVENIS CONSEIL LILLE

16.050€ /an HTHC
loyer de la surface minimum

Touchez l'image pour voir tous les visuels

Description

Advenis Conseil Lille vous propose plusieurs plateaux de bureaux ainsi qu'un restaurant disponibles à la location. L'emplacement est privilégié au coeur du CRT de Lesquin représentant un atout pour les entreprises cherchant à s'implanter dans une zone stratégique. Ce CRT est le plus grand parc d'activités au nord de Paris, représentant un pôle économique majeur pour les Hauts-de-France. Faites confiance à l'équipe Advenis Conseil Lille, n'hésitez pas à nous contacter pour plus de renseignements.
DPE En cours

Les informations sur les risques auxquels ce bien est exposé sont disponibles sur le site Géorisques : www.georisques.gouv.fr

Informations financières

  • Loyer annuel surface minimum :

  • Honoraires :

  • 16.050 Euros/an HTHC (107 Euros/m2/an HTHC)

  • 15 % HT à la charge du preneur

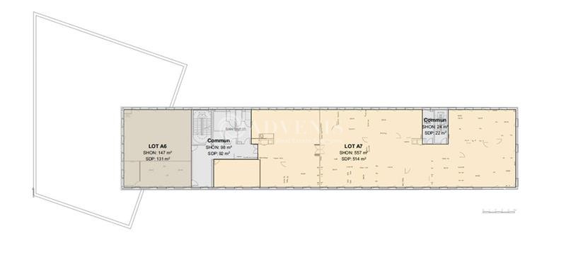
Surfaces proposées


TypologieSurface
Bureaux650
Bureaux772
Bureaux772
Bureaux772

Desserte transports

A23
A1

Consommation énergétique

DPE : En cours de réalisation.

Offres similaires

Surface totale 100 m² - Dispo. Immédiate

BUREAUX

59262, SAINGHIN-EN-MELANTOIS

59_8203

De 337 m² à 686 m² - Dispo. Immédiate

BUREAUX

59262, SAINGHIN EN MELANTOIS

LR_L48941

De 1217 m² à 3920 m² - Dispo. Janvier 2026

BUREAUX

59262, SAINGHIN EN MELANTOIS

59_3581