logo-locauxrama

Bureaux à Louer à partir de 118m² à Montmagny - Réf. LR-N51133

Présenté par ADVENIS CONSEIL IDF EST

24.780€ /an HTHC
loyer de la surface minimum

Touchez l'image pour voir tous les visuels

Description

ADVENIS CONSEIL vous propose à la location des plateaux de bureaux divisibles à partir de 118 m² jusqu'à 2472m² sur la commune de Montmagny.
Situé à 200 mètres à pied de la Gare Epinay-Villetaneuse, le développement du programme immobilier MY7 s'intègre dans la requalification de la zone Gare.

Immeuble mixte composé de 2 400 m² de bureaux en R 2 et 1 150 m² de commerces en RDC.
L'immeuble disposera de balcons accessibles et répond aux exigences environnementales, en visant la certification BREEAM Very Good, RE 2020 et RT 2012. Le bâtiment sera également doté de panneaux photovoltaïques en toiture.
DPE En cours

Les informations sur les risques auxquels ce bien est exposé sont disponibles sur le site Géorisques : www.georisques.gouv.fr

Informations financières

  • Loyer annuel surface minimum :

  • Honoraires :

  • 24.780 Euros/an HTHC (210 Euros/m2/an HTHC)

  • 15 % HT à la charge du preneur

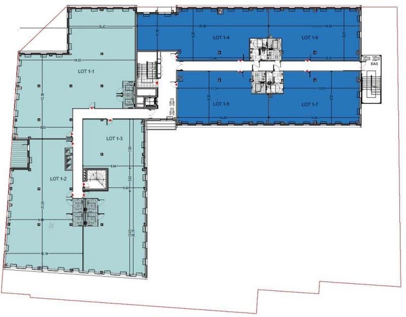
Surfaces proposées


Bât/LotTypologieSurfaceLoyer m²/an HT HC
1-1Bureaux283210
1-2Bureaux210210
1-3Bureaux228210
1-4Bureaux158225
1-5Bureaux121225
1-6Bureaux118225
1-7Bureaux119225
2-1Bureaux284210
2-2Bureaux206210
2-3Bureaux229210
2-4Bureaux158225
2-5Bureaux121225
2-6Bureaux118225
2-7Bureaux119225

Accès routiers

Situé à Montmagny, à 200 mètres à pied de la Gare Epinay-Villetaneuse, le développement du programme immobilier MY7 s?intègre dans la requalification de la zone Gare.

Desserte transports

A 9 kilomètres de Paris
Autoroutes A1, A3 et A104
Transilien : Ligne H Gare Epinay-Villetaneuse à 200 mètres
Tramway : Ligne T11

Consommation énergétique

DPE : En cours de réalisation.

Offres similaires

Surface totale 120 m² - Dispo. Immédiate

BUREAUX

95500, LE THILLAY

95_0019

De 290 m² à 1456 m² - Dispo. Immédiate

BUREAUX

95800, CERGY

LR_C47235

Surface totale 230 m² - Dispo. Immédiate

BUREAUX

95100, ARGENTEUIL

LARG230FRL_5444