logo-locauxrama

Bureaux à Louer à partir de 97m² à Tours - Réf. LR-V52123

Présenté par ADVENIS CONSEIL TOURS

16.005€ /an HTHC
loyer de la surface minimum

Touchez l'image pour voir tous les visuels

Description

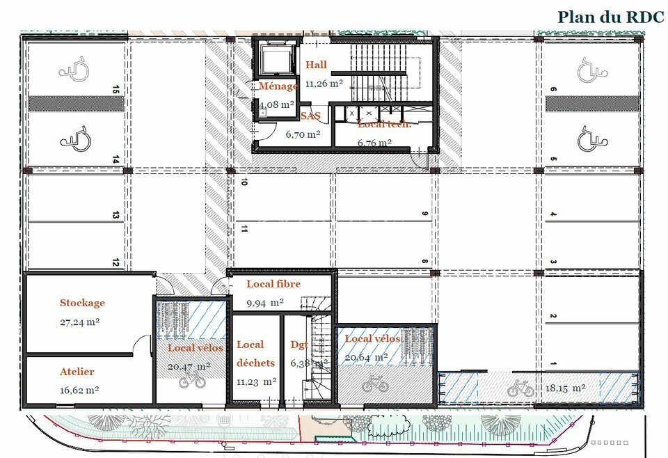
Au sein d'un projet de construction de deux bâtiments en R+4, offrant environ 2 314 m² et 2 357 m² de bureaux à louer. Chaque immeuble comprend 55 à 58 places de stationnement, 47 m² dédiés aux locaux vélos, complétés par un parc paysagé. Certifié BREEAM 'Very Good' et labellisé Biodiversity, ce site est conforme à la RE 2020. Il bénéficie également d'une accessibilité optimale, avec les bus Fil Bleu (lignes 17 et 53) à seulement 1 minute, un accès au tramway en 15 minutes, et l'autoroute A10 située à 4 km. À proximité, vous trouverez notamment des restaurants, des salles de sport et hyper/supermarchés. La livraison est prévue pour le 2ème semestre 2026.


DPE En cours

Les informations sur les risques auxquels ce bien est exposé sont disponibles sur le site Géorisques : www.georisques.gouv.fr

Informations financières

  • Loyer annuel surface minimum :

  • 16.005 Euros/an HTHC (165 Euros/m2/an HTHC)

Surfaces proposées


Bât/LotTypologieSurfaceParking sous-sol/Parking extérieurObservations
01/Bureaux2890/7Divisible à partir de 97 m²
01/Bureaux2890/8Divisible à partir de 97 m²
01/Bureaux5780/14Divisible à partir de 97 m²
01//Atelier - stockageArchives / réserves44

Desserte transports

A proximité de l'A10 et de l'A28
Echangeur A85 à 15 km environ
Desserte bus Fil Bleu
Aéroport à proximité
Gare TGV à 10 Km

Consommation énergétique

DPE : En cours de réalisation.

Offres similaires

De 53 m² à 461 m² - Dispo. Immédiate

BUREAUX

37000, TOURS

22_26

Surface totale 69 m² - Dispo. janvier 2026

BUREAUX

37000, TOURS

37_0220

Surface totale 396 m² - Dispo. Immédiate

BUREAUX

37100, TOURS

2352_25L0