logo-locauxrama

Local d'activite à Vendre de 175m² à Sete - Réf. LR-W54697

Présenté par ADVENIS CONSEIL NARBONNE

295.226€

Touchez l'image pour voir tous les visuels

Description

Offre à l'achat Local d'activité d'environ 175 m² Sète

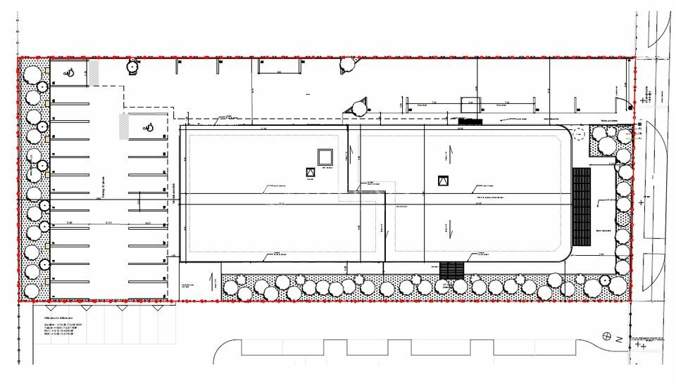
ADVENIS vous propose à l'achat un ensemble de locaux d'activité et bureaux au sein de la zone d'activité Les eaux blanches sur la commune de Sète, dans un programme neuf pensé pour la fonctionnalité et la modularité.

Caractéristiques principales :

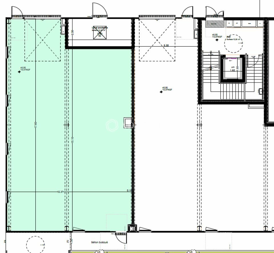
Locaux d'activité et / ou bureaux en rez-de-chaussée : surface comprise entre 100 et 400 m² environ, adaptés à divers usages professionnels (artisanat, petite industrie, commerce léger).

Bureaux à l'étage (R+1) : surface équivalente, offrant un environnement de travail confortable et modulable.

Programme neuf, conçu pour offrir flexibilité et fonctionnalité selon vos besoins.

Espaces lumineux et adaptables, facilement aménageables selon l'activité.

Atouts :

Emplacement stratégique sur la commune de Sète, facilement accessible.

Convient parfaitement aux entrepreneurs, artisans, professions libérales ou entreprises en croissance.

Opportunité idéale pour lancer ou développer votre activité dans un environnement fonctionnel et moderne.
DPE En cours

Les informations sur les risques auxquels ce bien est exposé sont disponibles sur le site Géorisques : www.georisques.gouv.fr

Informations financières

  • Prix de vente :

  • Honoraires :

  • 295.226 Euros

  • Nous consulter

Surfaces proposées


Bât/LotTypologieSurfaceSurface avec parties communesPlaces de parkingPrix lot HT
1Bureau167,79 m²174,69 m²2295.226 Euros

Consommation énergétique

DPE : En cours de réalisation.

Offres similaires

De 82 m² à 475 m² - Dispo. Immediate

LOCAL D'ACTIVITE

34200, SETE

34_000914

Surface totale 199 m² - Dispo. 4EME TRIMESTRE 2026

LOCAL D'ACTIVITE

34200, SETE

34_0622

De 142 m² à 1227 m² - Dispo. Nous consulter

LOCAL D'ACTIVITE

34200, SETE

34_1571