logo-locauxrama

Local d'activite à Louer de 217m² à Bessan - Réf. LR-W55607

Présenté par ADVENIS CONSEIL NARBONNE

23.870€ /an HTHC

Touchez l'image pour voir tous les visuels

Description

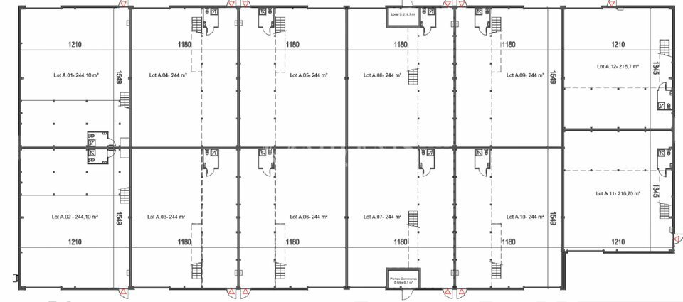
Situé à Bessan, ce futur village d'entreprises est dédié aux activités artisanales et aux services. ADVENIS vous propose à la location une surface d'activité de 217 m² (162 m² en RDC / 54 m² en mezzanine). L'emplacement bénéficie d'une accessibilité pratique aux axes principaux, offrant une excellente connexion aux villes et zones économiques environnantes. Le projet s'inscrit dans un environnement économique dynamique, propice au développement des TPE et PME locales.

Description du programme :

20 locaux d'activité

Surface de chaque local : 202 à 252 m²

Plain-pied avec mezzanine aménageable, adaptée à un usage de bureaux ou de stockage

Espaces modulables et fonctionnels, adaptés à la production, au stockage, à l'emballage ou à une activité artisanale

Mezzanine aménageable pour bureaux ou stockage supplémentaire

79 places de stationnement pour les occupants et visiteurs

Possibilité d'adapter chaque local selon les besoins spécifiques de l'entreprise

Les locaux sont livrés bruts, avec les réseaux et fluides en attente, permettant une personnalisation selon les besoins de chaque entreprise.
DPE En cours

Les informations sur les risques auxquels ce bien est exposé sont disponibles sur le site Géorisques : www.georisques.gouv.fr

Informations financières

  • Loyer annuel :

  • Honoraires :

  • 23.870 Euros/an HTHC

  • 15 % HT à la charge du preneur

Surfaces proposées


Bât/LotTypologieSurfaceDétail des surfacesLoyer m²/an HT HC
A/11Local d'activité 217 m² Activités : 162 m² / Mezzanine: 54 m²110 Euros

Desserte transports

Autoroute A9
Sortie 34 AGDE-VIAS

Consommation énergétique

DPE : En cours de réalisation.

Offres similaires

Surface totale 970 m² - Dispo. Avril 2025

LOCAL D'ACTIVITE

34550, BESSAN

34_1114

De 202 m² à 4771 m² - Dispo. DERNIER TRIMESTRE 2025

LOCAL D'ACTIVITE

34550, BESSAN

3448219431

Surface totale 202 m² - Dispo. Février 2026

LOCAL D'ACTIVITE

34550, BESSAN

LR_W55609