logo-locauxrama

Local d'activite à Vendre de 199m² à Sete - Réf. LR-W56723

Présenté par ADVENIS CONSEIL NARBONNE

335.989€ HT

Touchez l'image pour voir tous les visuels

Description

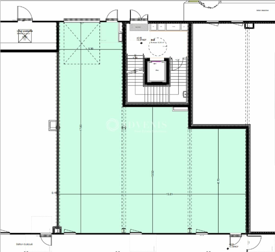
Offre à l'achat Local d'activité d'environ 200 m² Sète

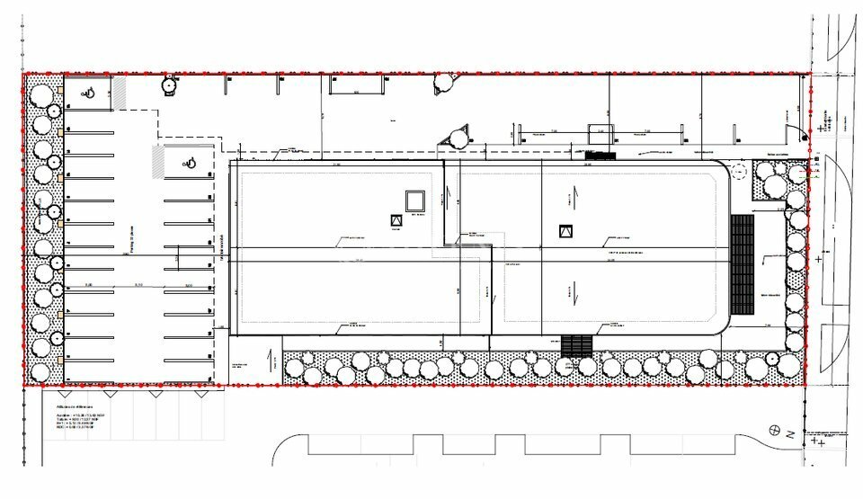
ADVENIS vous propose à l'achat un ensemble de locaux d'activité et bureaux au sein de la zone d'activité Les eaux blanches sur la commune de Sète, dans un programme neuf pensé pour la fonctionnalité et la modularité.

Caractéristiques principales :

Locaux d'activité et / ou bureaux en rez-de-chaussée : surface comprise entre 100 et 400 m² environ, adaptés à divers usages professionnels (artisanat, petite industrie, commerce léger).

Bureaux à l'étage (R+1) : surface équivalente, offrant un environnement de travail confortable et modulable.

Programme neuf, conçu pour offrir flexibilité et fonctionnalité selon vos besoins.

Espaces lumineux et adaptables, facilement aménageables selon l'activité.

Atouts :

Emplacement stratégique sur la commune de Sète, facilement accessible.

Convient parfaitement aux entrepreneurs, artisans, professions libérales ou entreprises en croissance.

Opportunité idéale pour lancer ou développer votre activité dans un environnement fonctionnel et moderne.
DPE En cours

Les informations sur les risques auxquels ce bien est exposé sont disponibles sur le site Géorisques : www.georisques.gouv.fr

Informations financières

  • Prix de vente :

  • Honoraires :

  • 335.989 Euros HT

  • Nous consulter

Surfaces proposées


Bât/LotTypologieSurfaceSurface avec parties communesPlaces de parking
2Bureau191.01 m²198.80 m²2

Consommation énergétique

DPE : En cours de réalisation.

Offres similaires

Surface totale 293 m² - Dispo. Immédiate

LOCAL D'ACTIVITE

34200, SETE

34_4459

De 142 m² à 1227 m² - Dispo. 4EME TRIMESTRE 2026

LOCAL D'ACTIVITE

34200, SETE

34_0477

Surface totale 175 m² - Dispo. T1 2027

LOCAL D'ACTIVITE

34200, SETE

3448219927