logo-locauxrama

Bureaux à Louer de 107m² à Illkirch Graffenstaden - Réf. LR-A46584

Présenté par ADVENIS CONSEIL STRASBOURG

12.840€ /an HTHC

Touchez l'image pour voir tous les visuels

Description

Au coeur du Parc d'Innovation d'Illkirch-Graffenstaden, Advenis Conseil et Transaction Strasbourg vous propose à la location un plateau de 107 m² de bureaux aménagés.

Ces bureaux avec aménagements de standing sont situés au 2ème étage d'un immeuble de bureaux. Dans un cadre verdoyant, cet immeuble de bureaux fait partie d'un ensemble immobilier composé de 4 bâtiments d'architecture moderne en R+1 et R+2.

Située au sud de Strasbourg, le parc tertiaire d'Illkirch est facilement accessible avec des axes routiers et autoroutiers à proximité. La zone est également desservie par les transports en communs : Tram ligne A arrêt 'Campus d'Illkirch' et Bus ligne 63 arrêt 'Parc d'Innovation'.
DPE En cours

Les informations sur les risques auxquels ce bien est exposé sont disponibles sur le site Géorisques : www.georisques.gouv.fr

Informations financières

  • Loyer annuel :

  • Honoraires :

  • 12.840 Euros/an HTHC

  • 15 % HT à la charge du preneur

Surfaces proposées


Bât/LotTypologieSurfaceObservations
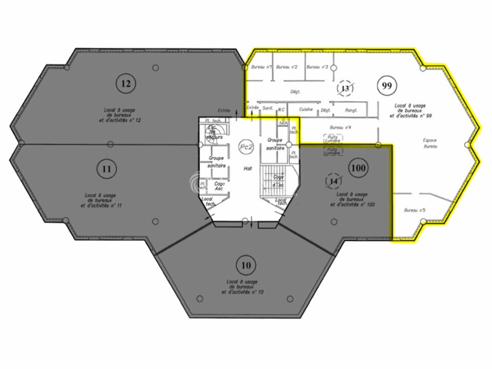
101 (ex 14)Bureaux107Surface de 107 m² PCI, surface utile de 94,6 m² - Loyer annuel de 12.840 Euros

Accès routiers

Situé au coeur du Parc tertiaire d'Illkirch Graffenstaden
Tram ligne A arrêt 'Campus d'Illkirch'
Bus ligne 63 arrêt 'Parc d'Innovation'

Desserte transports

A 9 km au Sud de Strasbourg
Accès direct et rapide en Allemagne par le Pont Pflimlin
Autoroute A35, sortie n°5 Illkirch
Parking Relais Tram Baggersee
Station Vélhop / Véloparc
Zone labellisée 'très haut débit'
Plus de 100 entreprises implantées dont 20 groupes d'envergure internationale

Consommation énergétique

DPE : En cours de réalisation.

Offres similaires

Surface totale 107 m² - Dispo. Immédiate

BUREAUX

67400, ILLKIRCH GRAFFENSTADEN

67_0162

Surface totale 90 m² - Dispo. A convenir

BUREAUX

67400, ILLKIRCH GRAFFENSTADEN

LR_A56101

Surface totale 243 m² - Dispo. 1er avril 2026

BUREAUX

67400, ILLKIRCH GRAFFENSTADEN

LR_A62